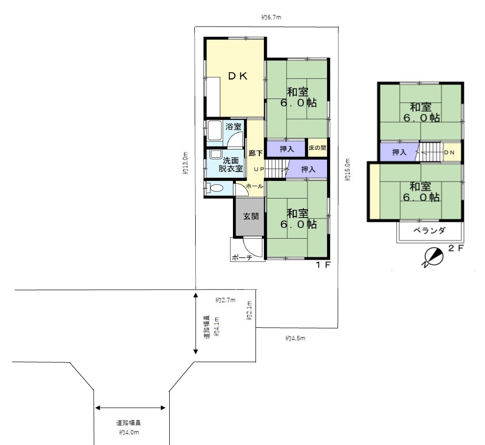
ホーム 物件情報 加古郡播磨町古宮6丁目 中古戸建 お気に入り物件一覧 加古郡播磨町古宮6丁目 中古戸建 お気に入りに登録する 解除する この物件の 資料請求 来場予約 基本情報 コンセプト 間取り 間取り図 現在の間取り図 4DK(DK6、和室6・6・6・6) リノベーションプラン一例 REAL ESTATE × CONSTRUCTION 不動産+工務店だからできる、安心のリノベーション 理想の住まいを、ひとつの窓口で。 中古物件を購入してリノベーションしたいけれど、 QUESTION 01 「どこまで工事ができるの?」 QUESTION 02 「この物件はリノベーションに向いている?」 そんな不安を感じる方も多くいらっしゃいます。 ワンストップで叶える理想の住まい ケーアイリビングでは、不動産と建築の両方を扱っているからこそ、 物件探しから設計・施工までワンストップでご相談いただけます。実際に売りに出ている物件をもとに・・・ ✔ 「この壁は取り払える?」 ✔ 「どんな間取りに変えられる?」 ✔ 「どれくらいの予算が必要?」 など、具体的なお話をしながらリノベーションプランをご提案します。 性能と美しさが共存する設計 完全注文住宅を手がける工務店だからこそ、 デザインだけではなく、断熱・耐震・暮らしやすさまで考えた住まいづくりが可能です。 “中古住宅を買う”だけではなく、 “これからの暮らしに合わせて住まいをつくる”という新しい選択を、ぜひご相談ください。 お問い合わせ 物件写真を多数掲載中 コンセプト 内覧のご予約も受け付け中!! 一覧へ戻る 079-436-8556 受付/9:00~18:00 定休日/火曜日・水曜日 ※ご予約のお客様には対応させていただきます。お気軽にご相談ください。 お気に入り一覧を見る この物件の来場予約 この物件の資料請求 電話